Rząd przygotowuje zakup używanego okrętu patrolowego na potrzeby Straży Granicznej.
Polska Straż Graniczna ma ponoć otrzymać zakupioną w Finlandii pełnomorską jednostkę pływającą Tiira. Jak wynika z projektu uchwały Rady Ministrów, do którego dotarła PAP - używany patrolowiec miałby kosztować około 2,5 mln zł, natomiast dalsze 2 mln zł pochłonęłoby przystosowanie go do służby. Nie wiadomo, co oznacza “przystosowanie do służby” i na co miałaby wystarczyć ta kwota, jednak 2 mln zł to - w kategoriach kosztów przeglądów, remontów i wyposażenia jednostek pływających lub cen, choćby skromnego, uzbrojenia - bardzo niewiele.
Tiira ma wzmocnić Morski Oddział Straży Granicznej i „być używanym do celów związanych z szeroko rozumianym bezpieczeństwem państwa". Jednostka ma zostać włączona w Zautomatyzowany Systemem Radarowy Nadzoru (ZSRN) stanowiący element zewnętrznej granicy Unii Europejskiej. Pieniądze mają pochodzić z rezerwy celowej budżetu.
Jak wynika z ogłoszenia na witrynie Straży Granicznej Finlandii, oferenci mieli zgłaszać swoje propozycje ceny zakupu na piśmie do 17 maja br. Wedle doniesień polskich mediów - także w maju 2013 r. - do Finlandii udała się delegacja z ekspertami ze Straży Granicznej, którzy ocenili, że stan techniczny oraz resurs silników i urządzeń patrolowca będącego wcześniej w służbie fińskiej Straży Wybrzeża, pozwolić mają na około 20 lat dalszej eksploatacji.
Tiira została wystawiona na sprzedaż przez Finów wraz z identyczną jednostką Tavi oraz niemal bliźniaczą Telkkä, która inaugurowała serię, i od której pochodzi nazwa typu. Tiira, którą ma nabyć Polska, jest najmłodszym z trzech okrętów typu "Telkkä” - została oddana do eksploatacji w 2004 roku. Pozostałe jednostki z tej serii oferowane przez Finów pochodzą z lat 1999 i 2002.
Wszystkie trzy jednostki oferowane przez Finów (Telkkä została wystawiona na sprzedaż z uszkodzonym jednym z silników głównych) zbudowane zostały w stoczni Uudenkaupungin Työvene (Uki Workboat Ltd). Drugą i trzecią jednostkę (Tiira) z serii zamówiono 8 grudnia 2000 roku, po nabyciu pierwszych doświadczeń eksploatacyjnych z okrętem Telkkä.
Według opisu jednostek typu “Telkkä” z czasu, gdy były one w służbie, każda z nich wyposażona została w zintegrowany system nawigacyjny i monitorowania otoczenia, system map elektronicznych, autopilota, system pozycjonowania dynamicznego, dwa żyrokompasy, echosondę, radionamiernik, odbiornik GPS i kamerę na podczerwień.Zestaw wyposażenia do usuwania skutków rozlewów olejowych, na wyposażeniu każdego z okrętów, zawierał m.in. pływające zapory do ograniczania rozlewów olejowych o łącznej długości 600 m i pływający gumowy zbiornik (“barkę”) na zebrane zanieczyszczenia o pojemności 50 m3.
Na wyposażenie przeciwpożarowe składał się m.in. monitor wodny o zasięgu 100 m. Na wyposażeniu każdego okrętu z serii jest też szybka ratownicza (w ostatnich doniesieniach polskich mediów nazywana inspekcyjną) łódź typu RIB, składowana na rufowej pochylni do wodowania.
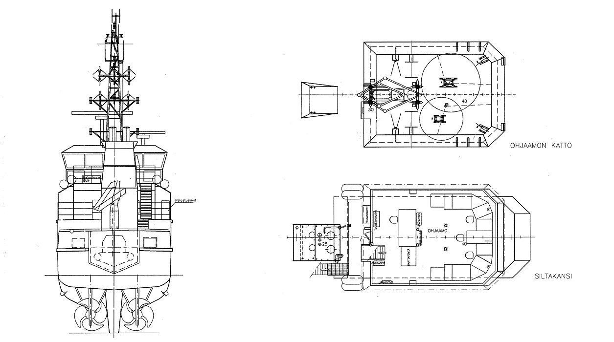
Tiira posiada stalowy kadłub i aluminiową nadbudówkę. Załoga ma do dyspozycji 9 kabin z 18 kojami.
Tiira wyposażona jest w dwa wysokoobrotowe silniki wysokoprężne zapewniające łącznie 5000 kW maksymalnej mocy ciągłej, przy 1500 obr./min.
Wiadomo, że przynajmniej jednokrotnie jedna z jednostek serii “Telkkä” składała roboczą (na wspólne ćwiczenia) lub kurtuazyjną wizytę w Morskim Oddziale Straży Granicznej w Gdańsku (Tavi w maju 2003 roku).
Na polskich forach specjalistycznych komentatorzy zwrócili uwagę m.in. na relatywnie niską cenę zakupu używanej, jednak niestarej, jednostki przeznaczonej ponoć dla naszej Straży Granicznej.
Okręty zostały otwarcie wystawione na sprzedaż kilka miesięcy temu (ogłoszenie w języku angielskim opublikowane w największym fińskim dzienniku “Helsingin Sanomat” 27 stycznia br.). Jednak według nieoficjalnych informacji, cytowanych m.in. przez międzynarodowe specjalistyczne fora dyskusyjne, Finowie próbowali sprzedać te jednostki już od dwóch lat i to brak chętnych skłonił ich do tak otwarego przedstawienia oferty sprzedaży. Mówi się, że w ciągu dwóch lat do początku tego roku wszystkie trzy jednostki z serii bardzo mało pływały. Na specjalistycznych forach mówiło się także (zanim zostało to oficjalnie potwierdzone przy ogłoszeniu oferty sprzedaży), że jedna z nich miała poważnie uszkodzony jeden z silników głównych.
Przedstawiciele fińskiej Straży Granicznej, w oficjalnych wypowiedziach, jako powody decyzji o sprzedaży trzech okrętów typu “Telkkä” podawali zmianę sytuacji w otoczeniu politycznym i w zakresie bezpieczeństwa międzynarodowego w rejonie Bałtyku, w tym przede wszystkim wejście Finlandii do Obszaru Schengen. Wspominano też niewystarczające i przestarzałe wyposażenie do zwalczania skutków rozlewów olejowych. Okręty nie posiadają wystarczających (jak na warunki fińskie) wzmocnień lodowych i komentatorzy zwracali uwagę na to, że jednostki praktycznie nie mogły być w Finlandii eksploatowane w (długim tam) okresie zimowym, jednak nie znalazło się to wśród podanych oficjalnie przyczyn sprzedaży okrętów.
Jednostki typu “Telkkä” mają być zastąpione we flotylli fińskiej Straży Granicznej, przez budowany w Raumie znacznie większy (i przystosowany do żeglugi w lodach) okręt, którego wprowadzenie do eksploatacji spodziewane jest w 2014 roku.
Komentatorzy wskazują na delikatną konstrukcję kadłuba wystawionych przez Finlandię na sprzedaż patrolowców (co jest istotną wadą w warunkach fińskiej zimy z silnym zalodzeniem akwenów), ich słabe uzbrojenie (jedynie dwa karabiny maszynowe 12,7 m), ciasnotę (powodującą niewygody dla załogi lub trudności operacyjne, choć ten akurat zarzut należy chyba rozpatrywać w kontekście bardzo wysokich oczekiwań załóg okrętów i wysokich standardów socjalno-bytowych panujących w krajach nordyckich), nieco zbyt duże zanurzenie (jak na okręty tego typu i oczekiwanej funkcjonalności oraz jak na warunki fińskie, z długą, skomplikowaną linią brzegową i akwenami o licznych skalnych płyciznach i gąszczu szkierowych wysepek).
Proszący o anonimowość znawca problematyki Marynarki Wojennej RP i morskich sił Straży Granicznej, zapytany przez Portal Morski o opinię o spodziewanej inwestycji Straży Granicznej, kwestionuje zasadność zakupu używanego fińskiego okrętu, jak i niektórych inwestycji MOSG z ostatnich lat. Z dotychczasowych doniesień medialnych należy rozumieć, że zakup odbywa się bez przetargu. Ponadto polska Straż Graniczna powinna sprecyzować własne potrzeby i wymagania, adekwatne do polskiej sytuacji oraz zadań MO SG i zamówić - zgodny z nimi - okręt w polskiej stoczni, zamiast kupować 10-letnią jednostkę o nienadzwyczajnych właściwościach techniczno-operacyjnych, projektowaną z myślą o eksploatacji w Finlandii, której utrzymanie (z racji m.in. na wiek, a wiadomo o poważnym uszkodzeniu silnika napędu głównego na jednostce bliźniaczej) może się okazać bardzo kosztowne.
Niektórzy komentatorzy z polskich specjalistycznych forów internetowych wskazują natomiat na okazję kupna “relatywnie nowoczesnej jednostki za stosunkowo nieduże pieniądze”.
Sprzedaż jednostki z Finlandii wymaga pozwolenia ekportowego, a umowa kupna-sprzedaży podpisana z wybranym oferentem (nabywcą) musi uzyskać ostateczną akceptację ze strony Rady Państwa Finlandii. Każda z oferowanych jednostek typu “Telkkä” wystawiona zostałą na sprzedaż bez jakiegokolwiek uzbrojenia.
Media4Sea
Tiira - charakterystyka podstawowa
długość całkowita 49,70 m
długość na wodnicy pływania 47,30 m
szerokość konstrukcyjna 7,30 m
szerokość maksymalna 7,50 m
wysokość do pokładu górnego 5,40 / 7,20 m
zanurzenie konstrukcyjne 3,72 m (4,40 m z wypuszczonym dziobowym pędnikiem azymutalnym)
zanurzenie maksymalne 3,90 m
wyporność 400 t
silniki napędu głównego 2 × Wärtsilä 12V200
zespoły prądotwórcze 2 × Valmet 612 DSJGM (170 kVA każdy) + 1 × agregat awaryjny (35 kVA)
moc napędu głównego 2 × 2500 kW (według niektórych źródeł - 2 × 2700 kW)
pojemność zbiorników na paliwo 55 000 litrów
autonomiczność 7 dób
pędniki napędu głównego dwie śruby nastawne
prędkość ponad 20 węzłów (według niektórych źródeł 22 węzły)
wyposażenie: dziobowy, chowany w kadłubie pędnik azymutalny, żurawik pokładowy, monitor wodny (p-poż), etc.




